密閉采樣系列
罐下密閉采樣器
|產品介紹
HCYSA型油罐罐下采樣器是我公司依據石化行業ISO3170(GB/T 4756-1998)《石油液體產品手工取樣法》、參考UOP技術、結合生產實際、用戶意見、國外同類產品先進經驗、歷經幾年開發設計的新型采樣設備(HCYSA-I型拱頂罐采樣器;HCYSA-II型內浮頂罐采樣器)。
HCYSA型油罐罐下采樣器有其如下優越性:
1、采用柔性連接技術,從而減少了罐內液體擾動對浮臂的沖擊力量,延長了罐內裝置的使用壽命;
2、采樣系統罐外部分采用流行的室外防雨、防塵、防盜箱式一體化結構,所有閥門、接管、循環泵組裝在箱體內整體供貨,組裝完畢后整體進行1.0MPa水壓試驗;
3、與物料接觸部分材質為304,既保證了樣品的純凈,又增強了管線的防腐蝕性能,確保使用壽命10年以上;
4、循環泵是我公司自主研發產品,具有防凍裂功能,焊接制造,材質為304,搖臂能360°輕松旋轉,羥乙基纖維素密封件結構采用無泄漏齒形纖維填料;
5、采樣、循環系統中采用兩位一通專用采樣閥門,材質為304,密封為耐寒特富龍。
用途
1、HCYSA-I型系列產品,用于100~10000m3拱頂貯罐罐下采樣。
2、HCYSA-II型系列產品,用于100~50000m3內、外浮頂貯罐罐下采樣。
3、HCYSA-III型系列產品,用于100~100000m3浮頂儲罐罐下采樣。
4、HCYSA-Ⅳ型系列產品,用于100~100000m3拱頂儲罐罐下采樣。
HCYSA型油罐罐下采樣器有其如下優越性:
1、采用柔性連接技術,從而減少了罐內液體擾動對浮臂的沖擊力量,延長了罐內裝置的使用壽命;
2、采樣系統罐外部分采用流行的室外防雨、防塵、防盜箱式一體化結構,所有閥門、接管、循環泵組裝在箱體內整體供貨,組裝完畢后整體進行1.0MPa水壓試驗;
3、與物料接觸部分材質為304,既保證了樣品的純凈,又增強了管線的防腐蝕性能,確保使用壽命10年以上;
4、循環泵是我公司自主研發產品,具有防凍裂功能,焊接制造,材質為304,搖臂能360°輕松旋轉,羥乙基纖維素密封件結構采用無泄漏齒形纖維填料;
5、采樣、循環系統中采用兩位一通專用采樣閥門,材質為304,密封為耐寒特富龍。
用途
1、HCYSA-I型系列產品,用于100~10000m3拱頂貯罐罐下采樣。
2、HCYSA-II型系列產品,用于100~50000m3內、外浮頂貯罐罐下采樣。
3、HCYSA-III型系列產品,用于100~100000m3浮頂儲罐罐下采樣。
4、HCYSA-Ⅳ型系列產品,用于100~100000m3拱頂儲罐罐下采樣。
|產品結構
結構形式1、HCYSA-I型系列產品結構形式為浮標帶動的采樣管裝置(見圖一)
2、HCYSA-II型系列產品是利用內浮頂罐內浮盤帶動的采樣管裝置(見圖二)
3、HCYSA-III型系列產品結構形式為浮盤鉸鏈式采樣裝置(見圖三)
4、HCYSA-IV型系列產品結構形式為鉸鏈式采樣裝置(見圖四)
5、以上系列產品結構的共同特點:
(1)采樣點準確
(2)采樣管與油罐外部管線間都用304材質不銹鋼金屬軟管連接,保證了采樣組合件活動靈活,因此遠比其它非金屬材料軟管壽命長。
HCYSA-I型罐下采樣器結構示意圖

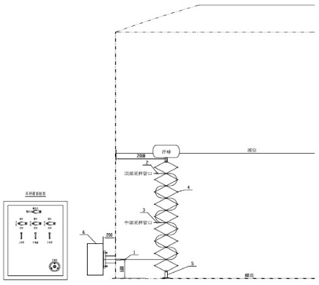
1、管束托架 2、管束支座 3、金屬軟管 4、采樣箱 5、采樣箱接管 6、下部樣采樣管 7、支撐管 8、中部樣采樣管 9、上部樣采樣管 10、浮球
HCYSA -II型罐下采樣器結構示意圖

1、管束托架 2、管束支座 3、金屬軟管 4、采樣箱 5、采樣箱接管 6、下部樣采樣管 7、支撐管 8、中部樣采樣管 9、上部樣采樣管 10、吊鉤
HCYSA -Ⅲ型罐下采樣器結構示意圖
浮頂儲罐浮盤鉸鏈式采樣裝置

HCYSA -Ⅳ型罐下采樣器結構示意圖

|產品技術參數
1、采樣器全部組裝后,對易腐蝕件應涂防腐漆兩遍。2、本采樣器采樣點的設置系根據依據石化行業ISO3170(GB/T 4756-1998)《石油液體產品手工取樣法》、SH-T3414-1999《輕質油罐下采樣器選用、檢驗驗收》設計,上部,中部和下部采樣口總保持在液面的六分之五,二分之一和六分之一處。
3、吊鉤應在現場按罐內介質而確定尺寸,其圓弧圓心誤差不應大于±200毫米。
|安裝維護
HCYSA型油罐罐下采樣器安裝方便。分罐內、罐外兩部分安裝。安裝時,先安裝罐外部分,再安裝罐內部分。所有焊接按JB/T 4709-2000《鋼制壓力容器焊接規程》的規定執行。1、罐外安裝:
1.1 在離罐底1米高的油罐壁上開一個直徑為90毫米的孔;
1.2 把配備的帶法蘭接管與罐壁焊接;
1.3 把采樣器箱體法蘭與罐壁法蘭連接。
2、罐內安裝:
2.1 在離罐壁開孔1米處(向罐中心),把支架焊接于罐底;
2.2 在離罐壁開孔8米處(向罐中心),把管束托架焊接于罐底;
2.3 按標記連接采樣管線,擰緊采樣管線的活接,并固定于支架、平放在托架上;
2.4 用金屬軟管把采樣箱伸入罐內的采樣管和采樣管線連接,連接時依次將伸入罐內較長(中、短)的采樣管和管線中較長(中、短)的采樣管線相連。
2.5 浮頂罐:用吊鉤組件把采樣管束固定在離罐壁4米處的罐內浮盤上,固定點和管束支架、托架在垂直于罐底的同一平面上。
拱頂罐:把浮球固定在采樣管線上,較小的浮球固定在采樣管線中部,較大的浮球連接在采樣管線梢部。
使用
HCYSA型油罐罐下采樣器使用簡單、快捷,如附圖,操作步驟如下:
1. 打開采樣器箱門,取出循環泵手柄,安裝在手搖泵的軸上,并打開面板下部的總循環閥門;
2. 把上部樣取樣閥門擰到“循環”位置上,然后慢慢的搖動循環泵手柄數圈(上部樣約5圈,中部樣約3.5圈,下部樣約2圈);
3. 把采樣瓶放于上部樣閥門的出口下,再把閥門從循環位置擰到采樣位置上,便可采到所需樣品,樣品達到所需量后,關閉取樣閥門;
4. 中、下部樣的采樣次序均如此,上中下部樣的順序可以任意選擇;
5. 采樣完成后,把所有采樣閥均旋到“關閉”位置,拿下循環泵手柄,豎立在箱內,關閉箱門。采樣過程完成。








產品中心 
