過濾器系列
雙聯過濾器
|產品介紹
雙聯切換過濾器是由兩臺過濾器并聯而成,具有結構新穎合理、密封性好、流通能力強、操作簡便等優點,應用范圍廣泛、適應性強的多用途過濾設備。雙聯切換過濾器采用兩個三通球閥,將兩個單筒過濾器組裝在一個機座上,清洗過濾器時不必停車,保證其連續工作。
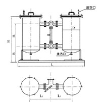
|產品結構
|產品技術參數
雙聯切換過濾器參數材料表:| 殼體材質 | 碳鋼 不銹鋼 |
| 濾框濾網材質 | 不銹鋼 |
| 三通球閥 | 碳鋼 不銹鋼 |
| 密封件材質 | 耐油石棉橡膠、金屬纏繞墊、聚四氟乙烯 |
| 工作溫度(℃) | -80~450 |
| 連接方式 | 法蘭連接、對焊連接、螺紋連接 |
| 公稱壓力(MPa) | 0.6~5.0 (150Lb~600Lb) |
| 過濾精度(目/in) | 5~800 |
雙聯切換過濾器表格計算單位:(mm)
| DN | D | L | L1 | H1 | H2 | H3 |
| 50 | 273 | 1250 | 380 | 1200 | 460 | 550 |
| 65 | 325 | 1280 | 400 | 1200 | 475 | 550 |
| 80 | 377 | 1400 | 420 | 1440 | 515 | 660 |
| 100 | 425 | 1570 | 480 | 1480 | 540 | 690 |
| 150 | 520 | 1880 | 580 | 1780 | 610 | 900 |
| 200 | 566 | 2100 | 650 | 1880 | 680 | 900 |
|安裝維護
|訂貨須知
1、我廠承接各種非標尺寸雙聯切換過濾器;2、訂貨時請注明口徑、材質、壓力、過濾精度及數量等。








產品中心 
