水幕噴頭系列
PZM-PZD噴嘴系列
|產品介紹
噴淋噴嘴是石油、化工罐區防護冷卻、消防滅火所必備的器材。我廠根據國家GB5135.3-2003《水霧噴頭》的標準,參考國外先進技術,研制了“進水口與出水口成一定角度的離心霧化噴頭”PZM型和PZM-A型;“由于撞擊作用而產生霧化的水幕噴頭”PZD-C型。產品經“國家固定滅火系統和耐火構件質量監督檢驗中心”試驗,其技術性能和技術指標均達到國內外有關標準的要求。
|產品結構
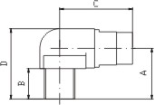
PZM-1/2~11/2內、外螺紋滿錐型

| 型號 | A | B |
C 面距 |
Q(L/min) 0.2Mpa-0.35Mpa |
a 噴散角 |
| PZM-1/2RC/R | 46/44 | 19/17 | 26/26 | 10~30 | 90~120° |
| PZM-3/4RC/R | 54/52 | 22/20 | 32/32 | 35~60 | 90~120° |
| PZM-1RC/R | 67/65 | 24/21 | 42/38 | 65~100 | 90~120° |
| PZM-11/2RC/R | 82/80 | 27/25 | 56/52 | 120~150 | 90~120° |
| 噴散角度也可做成45°、60°、135°、150° | |||||
| 霧化霧滴平均直徑不大于1mm | |||||
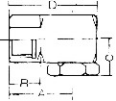
PZM-A-1/2~1"" (R) 外螺紋滿錐型


| 型號 | A | B | C | D | Q(L/min) | |
| 0.2MPa | 0.35MPa | |||||
| PZM-A1/2R | 35 | 21 | 50 | 48 | 20~30 | 30~50 |
| PZM-A3/4R | 35 | 21 | 50 | 48 | 35~60 | 60~80 |
| PZM-A1R | 43 | 26 | 58 | 65 | 65~100 | 100~120 |
| 噴散角度也可做成45°、60°、135°、150° | ||||||
| 霧化霧滴平均直徑不大于1mm | ||||||
PZD-C 3/8~3/4"" (R)外螺紋撒水幕型


| 型號 | 最小間隙 | 操作壓力 工作流量 | 噴散角 | |||
| 0.15MPa | 0.2MPa | 0.3MPa | 0.35MPa | |||
| PZD-C3/8R | Φ4.0 | 11.0 | 12.8 | 15.8 | 20 | 120° |
| PZD-C1/2R | Φ5.6 | 21.9 | 25.5 | 31.4 | 37 | 120° |
| PZD-C3/4R | Φ7.7 | 47.6 | 55.0 | 67.4 | 80 | 120° |
PZD-1/4~3/4""R外螺紋大水幕型

| 型號 |
A (mm) |
B (mm) |
C (mm) |
額定壓力下流量Q(L/min) | 噴散角 | |
| 0.15MPa | 0.20MPa | |||||
| PZD-1/4R | 30 | 12 | 15 | 2.2~4.4 | 2.7~5.5 | 90~120° |
| PZD-3/8R | 36 | 13 | 18 | 4.4~6.6 | 5.5~7.5 | 100~120° |
| PZD-1/2R | 42 | 16 | 22 | 6.6~28 | 7.5~32 | 120~130° |
| PZD-3/4R | 32 | 18 | 30 | 28~55 | 32~65 | 120~130 |
PZZ-1/2~1 1/4"內、外螺紋空錐型噴嘴



| 型號 | A | B | C | D |
Q(L/min) 0.2Mpa-0.3Mpa |
噴散角 |
| PZZ-1/2R/RC | 37 | 17 | 23 | 52 | 15~30 | 90~120 |
| PZZ-3/4R/RC | 43 | 19 | 28 | 62 | 30~45 | 90~120 |
| PZZ-1R/RC | 50 | 21 | 30 | 72 | 45~60 | 90~120 |
| PZZ-11/4R/RC | 52 | 23 | 38 | 78 | 60~100 | 90~120 |
PZQ型罐頂噴嘴
罐頂噴嘴安裝于儲罐頂部,起防護冷卻和消防滅火作用。


| 規格 | ZG |
H mm |
H1 mm |
壓力 P |
流量Q L/min |
角度 |
| DN15 | 1/2"R | 53 | 36 | 0.3 | 30 | 360° |
| DN20 | 3/4"R | 60 | 42 | 0.3 | 50 | 360 |









產品中心 
